欢迎进入山东岱圣建设有限公司官方网站!
二维码

VIP邮箱

山东岱圣建设有限公司 

地址:泰安市岱岳经济开发区 

电话:0538-8365877 

传真0538-8365877 

邮箱:daishengren@vip.163.com

  您的当前位置:首 页>> 行业资讯

管壳式换热器类型

发布时间:[2024-2-15 13:46:45]    浏览量:1138次

管壳式换热器在工业中用量约占换热器总量90%,是应用最为广泛的一种换热器。

  典型管壳式换热器的结构形式有固定管板换热器、U型管换热器、浮头式换热器、填料函式换热器、釜式重沸器、双管板式换热器、拉撑管板换热器、挠性管板换热器和缠绕管换热器。

1、固定管板换热器

固定管板换热器(图1)是二端管板与壳体固定连接(整体或夹持式)。

这是使用最为广泛的一类换热器。换热管两端固定在管板上,管板焊于壳体上。

固定管板换热器宜用于场合:

1)管、壳程金属温差不是很大,而压力较高的场合。当管、壳程金属温差较大时,压力就不能太高,因为温差大,必然增加膨胀节,由于膨胀节耐压能力差。

2)由于壳程无法机械清洗,因此要求壳程介质干净;或虽会结垢,但通过化学清而能去除的场合。

1)优点:

1)其结构简单,锻件使用较少,制造成本低。

2)管程可以分成各种形式的多程,壳程也分成二程。

3)传热面积比浮头式换热器大20%30%

4)旁路漏流较小。


2)缺点:

1)不适用于换热管与壳程圆筒的热膨胀变形差很大的场合,管板与管端之间易产生温差应力而损坏。

2)管子腐蚀后造成连同壳体报废,壳体部件寿命决定于管子寿命,故设备寿命相对较低。

3)壳程不能清洗,检查困难。

2 U型管换热器

U型管换热器(图2)是换热管二端固定在同一块管板上,管板与壳体固定连接(整体或夹持式)。

图二

U型管换热器可用于以下场合

1)管程走清洁流体。

2)管程压力特别高。

3)管、壳程金属温差很大,固定管板换热器连设置膨胀节都无法满足要求的场合。

1)优点:

1U形换热管尾端的自由浮动解决温差应力,可使用于两种介质温差较大。管、壳程金属温差不受限制。

2)管束可抽出,便于要经常清洗换热管外壁。

3)只有一块管板,加之法兰的数量也少,故结构简单而且泄漏点少,造价较低。

4)可在高温、高压下工作,一般适用于t≤500℃p≤10MPa

5)可用于壳程结垢比较严重的场合。

2)缺点:

1)管程流速太高时,将会对U形弯管段产生严重的冲蚀,影响寿命,尤其R小的管子,应控制管内流速。

2)管程不适用结垢较重的场合。

3)由于弯管Rmim的限制,分程间距宽,故比固定管板换热器排管略少。

4)换热管泄漏时,除外圈U形管外,不能更换,只能堵管。

5)管束中心部位孔隙较大,流体易走短路,影响传热效果,应增加隔板,减少短路现象。

6)因死区较大,只适用于内导流筒。

7)管板上排列换热管数较少。

8)最外排的管子U型弯曲段,因为无支撑的跨度较大,宜导致流体诱发振动问题。

9)有应力腐蚀要求时应慎重考虑。

3、浮头式换热器

浮头式换热器(图3)是一端管板与壳体固定连接(夹持式),另一端的浮头管板(包括浮头盖、勾圈等)在管箱内自由浮动,故无需考虑温差应力,管、壳程金属壁温差很大场合。


图三

1)管束可以抽出,以方便清洗管、壳程。

2)壳体壁与管壁不受温差限制。

3)可在高温、高压下工作,一般t≤450℃p≤6.4MPa

4)可用于结垢比较严重的场合。

5)可用于管程腐蚀场合。

2)缺点:

1)处于壳程介质内的浮头密封面操作中发生泄漏时很难采取措施。

2)结构复杂,金属材料耗量大,成本高。

3)浮头结构复杂,影响排管数。

4)压力试验时的试压胎具复杂。

5)金属材料耗量大,成本高20%

4、填料函式换热器

一端管板与壳体固定连接(夹持式),另一端的管板在填料函内自由浮动。

管束可以伸缩,可使用于两种介质温差较大。结构也较浮头简单,制造方便,成本优于浮头换热器。因管束可抽出,易于检修清洗。宜使用于有严重腐蚀介质。

4.1外填料函式换热器(图4

适用设备直径在DN700mm以下,且操作压力和操作温度也不宜过高,一般用于p≤2.0MPa场合。


图四

4.2滑动管板填料函换热器

4.2.1单填料函式换热器(图5


图五

在填料内侧密封处,管壳程介质间仍会产生串流现象,不适用管壳程介质不允许混合的场合。

4.2.2双填料函式换热器(图6

该结构以内圈为主要密封,防止内、外漏,而以外圈以辅助密封,防止外漏,且内外密封圈之间设置泄漏引出管与低压放空总管相连。该结构可用于中度危害、易爆等介质。


图六

5、釜式重沸器

釜式重沸器(图7)是一端管板与壳体固定连接(夹持式),另一端为U形管束或浮头管束,壳程为单(或双)斜锥具有蒸发空间的壳体,故管程的温度和压力比壳程高,一般为管程介质加热壳程介质。p≤6.4MPa

1)优点

1)适用于塔底重沸器、侧线虹吸式重沸器。

2)节约设备重量25%以上。

3)抗腐蚀性能良好。

4)有自清洗作用。管、壳程温差大的场合。

5)总传热系数提高40%以上。                                                

6)汽化率较高的场合(3080%)。

7)重沸工艺介质的液相作为产品或分离要求高的场合。                            

8)抗腐蚀性能良好。 

      

图七

2)缺点:

1)在重油设备上,如渣油、原油设备无应用历史。

2)不适用于有湿硫化氢场合。

6、双管板式换热器

双管板式换热器(图8)是每一侧有二块管板,换热管的一端同时与二块管板连接。主要用于管程和壳程之间介质相混合后,将会产生严重后果。但制造困难;设计要求高。

1)防腐蚀:管程和壳程二介质相混合后会引起严重腐蚀。

2)劳动保护:一程为剧毒介质,渗入另一程会引起系统大面积污染。

3)安全方面:管程和壳程介质相混合后,引起燃烧或爆炸。

4)设备污染:管程和壳程介质相混合后,引起聚合或生成树脂状物质。                     

5)催化剂中毒:另一程介质混入后造成催化剂性能改变或化学反应。

6)还原反应:管程和壳程介质相混合后,引起化学反应终止或限制。


图八

7)产品不纯:管程和壳程介质相混合后,引起产品污染或产品质量下降。

6.1双管板固定管板换热器(图9


图九

6.2双管板U形管换热器(图10



6.3双管板U形管釜式重沸器(图11


7、拉撑管板换热器

拉撑管板换热器(图12)是管板厚度较薄,一般厚度在1218mm之间。

7.1结构型式有:

1)贴面式(德国):管板焊在设备法兰密封面上(图12a)。

2)镶平式(原苏联ГОСТ标准):管板焊在设备法兰密封面其平(图12b)。

3)角焊式(原上海医药设计院研制):管板焊在壳体上(图12c)。


 

                                        a                           b                                        c               

12

7.2适用范围:

1)设计压力:管程和壳程分别不大于1.0 MPa

2)温度范围:管程和壳程的设计温度范围0℃300℃;换热管与壳体平均壁温差不超过30℃

3)直径范围:壳体内径不大于1200mm

4)换热管长度:不超过6000mm

5)换热管应采用光管,且与壳体材料的线膨胀系数接近(两者的数值差不大于10%)。

7.3、不宜设置膨胀节。

HG21503-1992《钢制固定式薄管板列管换热器》标准中选用角焊式贴面式两种结构。

薄管板的计算以换热管与壳体对管板是固定支撑,管板是在换热管与壳体固定支撑下的受压平板,因此换热管必须在操作中保持刚性,壳体也不能设置膨胀节,所以管壁与壳壁温差不能太大,要保证换热管与壳体的纵向稳定。换热管与管板必须采用焊接,但实际情况下,薄管板亦不能采用胀接办法,因薄管板的厚度一般为1216mm左右,如采用胀接时,管板将塑性变形,不能达到强度和密封性的要求。同时要求管板不兼作法兰,因薄管板承受不了法兰传过来的弯矩。因此采用薄管板必须满足上述要求。

薄管板亦可用于多程换热器,密封槽和分程槽均可直接开在薄管板上,因管板的强度计算厚度较小,开槽后强度也是足够的。但角焊式(原上海医药设计院研制)的结构,因薄管板的焊接形式不同,多程时需焊上用以开分程槽的隔板。

由于薄管板与法兰的连接形式各不相同,因而各有其优缺点,现分析如下。

1)受力和强度方面

从管板强度来看,角焊式(原上海医药设计院研制)研制的结构较好,它具有较大灵活性,主要是管板离开法兰,减少法兰力矩对管板的影响,从而降低了管板由法兰螺栓引起的应力。因法兰力矩引起的管板上应力是主要的,因此减小法兰力矩引起的应力,相应降低了管板总的应力。法兰螺柱在预紧时,法兰变形使管板受到周向压缩,而管板的周向刚度很大,给法兰以反力矩,减小了法兰的变形,亦减小了管板的应力。反力矩的大小决定于管板中心面与法兰中心面的偏心距e和管板周向刚度。角焊式(原上海医药设计院研制)研制的结构中的e值可由设计者自由选择,就显得有较大的灵活性。但e值不能选择过大,过大增加筒体长度,增加投资。

前苏联的结构,因管板中性面与法兰中性面接近,受法兰的力矩最大。德国的结构形式,较优于前苏联的结构形式。

2)在防腐蚀方面

从防腐蚀要求来考虑,前苏联的结构无任何优点,而德国的结构和角焊式(原上海医药设计院研制)研制的结构各有优缺点。当管程介质为腐蚀性介质时,选用德国结构较好,因法兰与管程腐蚀介质不接触,而不需选用耐腐蚀材料制造法兰;当壳程介质为腐蚀性介质时,选用角焊式(原上海医药设计院研制)研制结构较好,这时法兰与壳程腐蚀介质不接触,法兰可选用普通钢材制造;当壳程和管程介质均为腐蚀性介质,则选用上海医药设计院研制结构较好,因选用该结构时,可选用带衬环法兰,以达到防腐蚀要求。而前苏联的结构无论何种情况,腐蚀介质均要与法兰接触,法兰不能不选耐腐蚀材料。

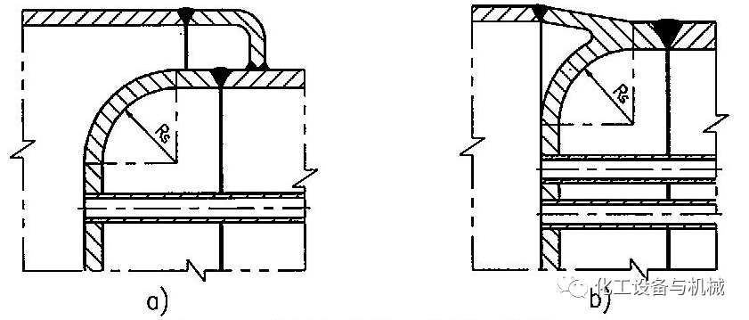
8、挠性管板换热器

适用于管程介质为气体,壳程产生饱和水蒸气的卧式管壳式余(废)热锅炉。

Ⅰ型管板与壳体(管箱)的连接(见图13a)和型管板与壳体(管箱)的连接(见图13b)。


 

13  挠性管板换热器

适用范围:

1)管程设计压力不大于1.0MPa,壳程设计压力不大于5.0 MPa且壳程压力应大于管程压力;

1型用于管程设计压力小于或等于0.6MPa

2型用于管程设计压力小于或等于1.0MPa

2)壳体直径与换热管长度分别为2500mm7000mm

9、高效缠绕管换热器

 

16

为节省设备投资,在有限换热器壳体容积中,布置最大换热管传热面积,提高换热效率,管壳式缠绕管换热器(图16)应运而生。此类换热器为多层多头在芯棒上缠绕焊接不锈钢小直径换热管,结构如图16所示。

10、奥氏体不锈钢波纹换热管换热器

1)适用范围:

1)设计压力不大于4.0MPa

2)设计温度不大于300℃

3)公称直径不大于2000mm

4)公称直径不大于与设计压力的乘积不大于4000

2)不适用的场合

1)毒性程度为极度或高度危害的介质;

2)易爆介质;

3)存在应力腐蚀倾向的场合。


x